 |
Matronics Email Lists Web Forum Interface to the Matronics Email Lists
|
| View previous topic :: View next topic |
| Author |
Message |
galinhdz(at)gmail.com Guest
|
Posted: Mon Jul 09, 2012 12:18 pm Post subject: Fwd: Bolt |
|
|
---------- Forwarded message ----------
From: HERNANDEZ, GALIN (IA)
Date: Monday, July 9, 2012
Subject: Bolt
To: galinhdz(at)gmail.com (galinhdz(at)gmail.com)
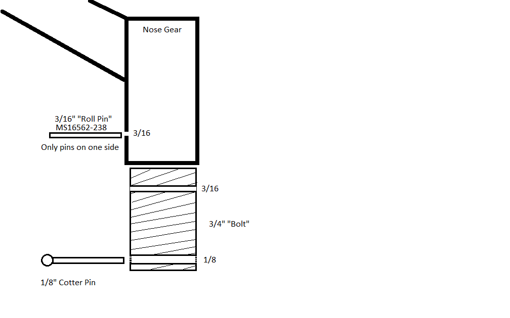
Here is the “bolt” I am talking about. I knda made a drawing of what I mean.
S/A Galín Hernández
CBP-Internal Affairs
602 Sawyer St., Suite 500
Houston, TX 77007
713-868-7323 (w)
713-868-7301 (f)
[url=javascript:_e({}, 'cvml', 'galin.hernandez(at)dhs.gov');]galin.hernandez(at)dhs.gov[/url]
| | - The Matronics KIS-List Email Forum - | | | Use the List Feature Navigator to browse the many List utilities available such as the Email Subscriptions page, Archive Search & Download, 7-Day Browse, Chat, FAQ, Photoshare, and much more:
http://www.matronics.com/Navigator?KIS-List |
|
| Description: |
|
| Filesize: |
149.84 KB |
| Viewed: |
1984 Time(s) |

|
| Description: |
|
| Filesize: |
125.38 KB |
| Viewed: |
1984 Time(s) |

|
| Description: |
|
| Filesize: |
9.14 KB |
| Viewed: |
1984 Time(s) |

|
|
|
| Back to top |
|
 |
jerzy_krasinski(at)sbcglo Guest
|
Posted: Mon Jul 09, 2012 1:29 pm Post subject: Fwd: Bolt |
|
|
Galin,
It all depends if you stripped the thread in the front leg or not
.
If not, I would just purchase identical threaded bolt and nuts made of aviation quality 4130 steel from any of the aviation supply houses like Aircraft Spruce or similar, and install it there.
In case of problems with finding a bolt like that in a store, any machinist can make it out of a 4130 blank. In fact Rich never delivered the bolt in my kit so I machined it myself.
I can see that you used a set screw to immobilize the bolt. These have tendency to get loose and the bolt might get out. I used the strongest type of Loctite bolt locking adhesive to immobilize the bolt. So far no problems
If the thread is stripped you would have to rethread the hole in the leg to the next bigger size thread.
By the way, the method of killing shimmy of the front wheel by friction is almost unworkable. You need friction to kill shimmy, at the same time you need grease on the bearing of the fork. I do not know how can you prevent grease from getting on the friction ring. Once you get grease on the friction ring you can forget the friction.
I had terrible problems with shimmy and finally I installed oil filled shimmy arrester from a Cessna.
Jerzy
From: Galin Hernandez <galinhdz(at)gmail.com>
To: "kis-list(at)matronics.com" <kis-list(at)matronics.com>
Sent: Mon, July 9, 2012 3:23:56 PM
Subject: Fwd: Bolt
---------- Forwarded message ----------
From: HERNANDEZ, GALIN (IA)
Date: Monday, July 9, 2012
Subject: Bolt
To: galinhdz(at)gmail.com (galinhdz(at)gmail.com)
Here is the “bolt” I am talking about. I knda made a drawing of what I mean.
S/A GalĂn Hernández
CBP-Internal Affairs
602 Sawyer St., Suite 500
Houston, TX 77007
713-868-7323 (w)
713-868-7301 (f)
galin.hernandez(at)dhs.gov
[quote][b]
| | - The Matronics KIS-List Email Forum - | | | Use the List Feature Navigator to browse the many List utilities available such as the Email Subscriptions page, Archive Search & Download, 7-Day Browse, Chat, FAQ, Photoshare, and much more:
http://www.matronics.com/Navigator?KIS-List |
|
|
|
| Back to top |
|
 |
galinhdz(at)gmail.com Guest
|
Posted: Mon Jul 09, 2012 3:18 pm Post subject: Fwd: Bolt |
|
|
Is your front leg threaded? Mine is not so that is why it has a steel roll set pin in the top. As soon as I sheared the pin, the bolt fell right out. I had a machinist make another bolt for me but was wondering why the set pin does not extend out the other side. I wanted to make sure it was OK to drill a hole in the leg so the pin can have two points holding it instead of just one like it currently has.
Galin
On Monday, July 9, 2012, jerzy krasinski wrote:
[quote] Galin,
It all depends if you stripped the thread in the front leg or not
.
If not, I would just purchase identical threaded bolt and nuts made of aviation quality 4130 steel from any of the aviation supply houses like Aircraft Spruce or similar, and install it there.
In case of problems with finding a bolt like that in a store, any machinist can make it out of a 4130 blank. In fact Rich never delivered the bolt in my kit so I machined it myself.
I can see that you used a set screw to immobilize the bolt. These have tendency to get loose and the bolt might get out. I used the strongest type of Loctite bolt locking adhesive to immobilize the bolt. So far no problems
If the thread is stripped you would have to rethread the hole in the leg to the next bigger size thread.
By the way, the method of killing shimmy of the front wheel by friction is almost unworkable. You need friction to kill shimmy, at the same time you need grease on the bearing of the fork. I do not know how can you prevent grease from getting on the friction ring. Once you get grease on the friction ring you can forget the friction.
I had terrible problems with shimmy and finally I installed oil filled shimmy arrester from a Cessna.
Jerzy
From: Galin Hernandez <[url=javascript:_e({}, 'cvml', 'galinhdz(at)gmail.com');]galinhdz(at)gmail.com[/url]>
To: "[url=javascript:_e({}, 'cvml', 'kis-list(at)matronics.com');]kis-list(at)matronics.com[/url]" <[url=javascript:_e({}, 'cvml', 'kis-list(at)matronics.com');]kis-list(at)matronics.com[/url]>
Sent: Mon, July 9, 2012 3:23:56 PM
Subject: KIS-List: Fwd: Bolt
---------- Forwarded message ----------
From: HERNANDEZ, GALIN (IA)
Date: Monday, July 9, 2012
Subject: Bolt
To: [url=javascript:_e({}, 'cvml', 'galinhdz(at)gmail.com');]galinhdz(at)gmail.com[/url]
Here is the “bolt” I am talking about. I knda made a drawing of what I mean.
S/A Galín Hernández
CBP-Internal Affairs
602 Sawyer St., Suite 500
Houston, TX 77007
713-868-7323 (w)
713-868-7301 (f)
galin.hernandez(at)dhs.gov
| Quote: |
et="_blank">http://www.matronics.com/Navigator?KIS-List
tp://forums.matronics.com
_blank">http://www.matronics.com/contribution
|
[b]
| | - The Matronics KIS-List Email Forum - | | | Use the List Feature Navigator to browse the many List utilities available such as the Email Subscriptions page, Archive Search & Download, 7-Day Browse, Chat, FAQ, Photoshare, and much more:
http://www.matronics.com/Navigator?KIS-List |
|
|
|
| Back to top |
|
 |
|
|
You cannot post new topics in this forum You cannot reply to topics in this forum You cannot edit your posts in this forum You cannot delete your posts in this forum You cannot vote in polls in this forum You cannot attach files in this forum You can download files in this forum
|
Powered by phpBB © 2001, 2005 phpBB Group
|